参数信息
| 案例名称 | 爆改49㎡小户型,极致空间! | 户型 | 一居室/小户型 | 案例面积 | 49㎡ |
| 风格 | 简约 | 店面 | 企鹅村文创园美晟家装饰 | 设计师 | 章琰 |
设计说明
设计对空间进行打破重组,将空间规划为公共区域和私密区。公共区满足交流会客,就餐需求。私密区主要是卫生间,书房,卧室功能。卧室设计为台阶式榻榻米床,与飘窗做一个延伸。台阶式设计提供不同情境式的交流场景和视野,同时增加抽屉收纳。
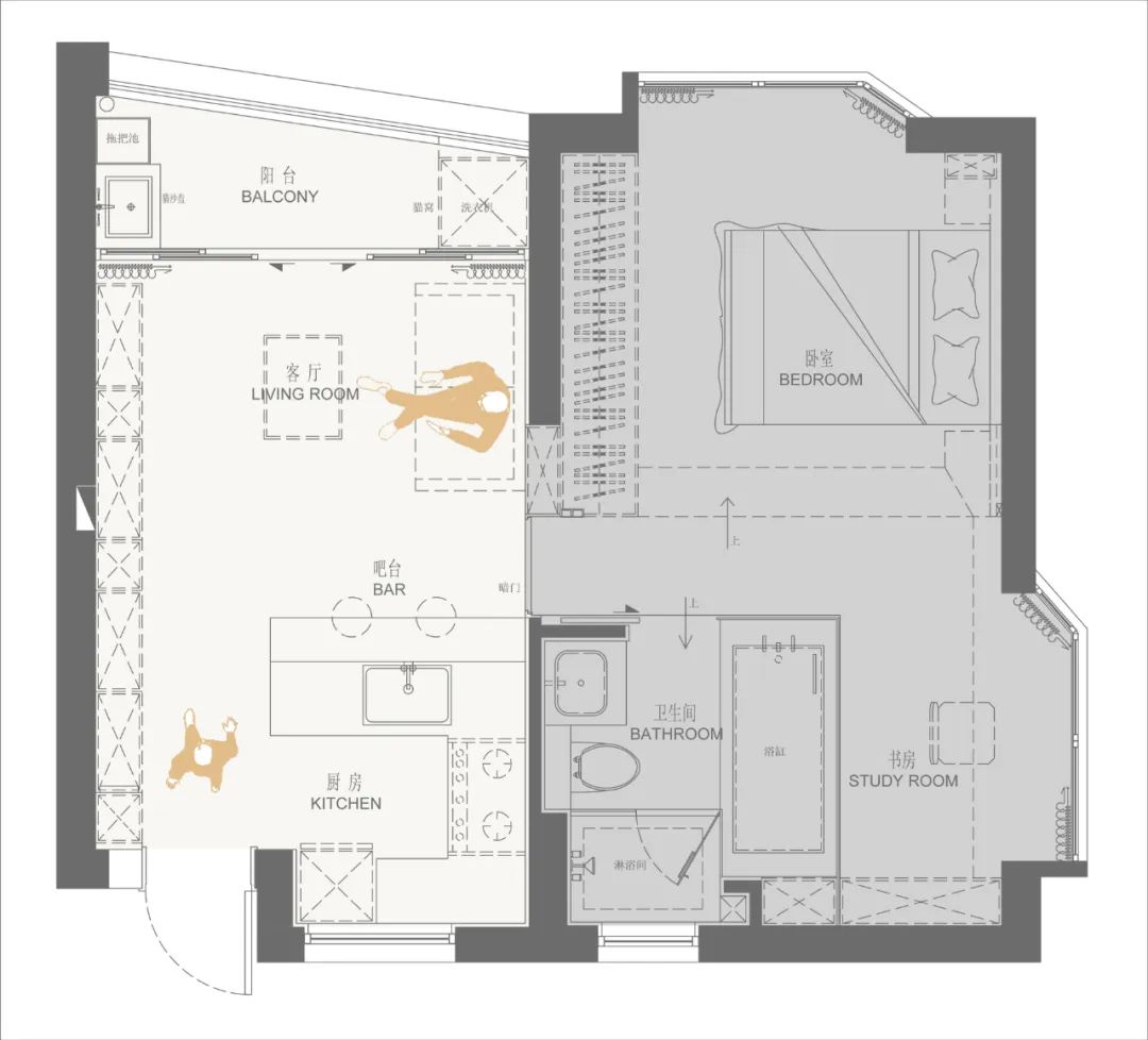
平面图
客厅
客厅的无主灯设计为空间增添时尚感
U型厨房设计超大化利用空间。
卧室空间整体的地台设计,保证功能实用,还为空间增添些许趣味性。
卫生间区域整洁雅致,黑白色瓷砖相互搭配,营造简约氛围。
借助阳台打造的书房空间,小户型的极致打造也不过如此。
本方案设计师
